
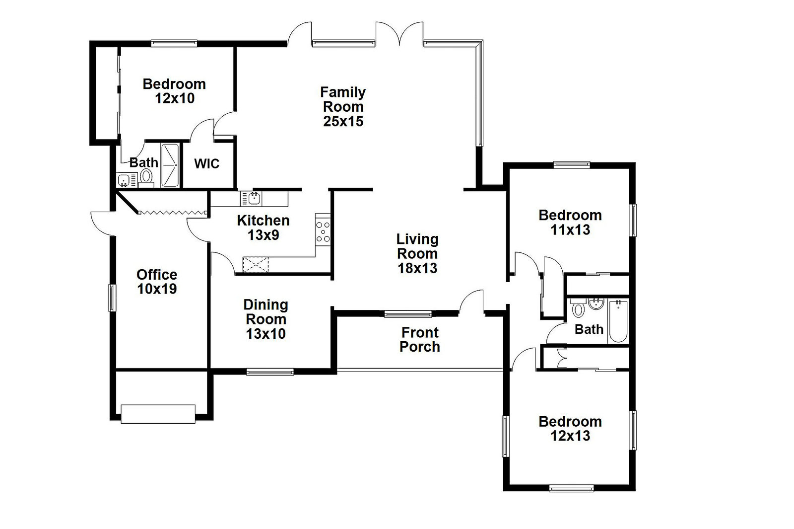
Welcome to this charming 3-bedroom, 2-bathroom Biltmore Heights home with hardwood floors throughout living areas and bedrooms. The spacious sun-drenched family room features wall-to-wall windows, open beam ceiling and tile flooring, while the inviting front porch offers beautiful Southern exposure surrounded by mature shade trees. Inside, discover an updated kitchen with a skylight and formal dining room. Authentic 1950s vintage touches include original bathroom tiles and classic Dade County pine wainscoting in one bedroom. Impact windows and doors provide hurricane protection and quiet. The converted garage offers versatile workspace and laundry area, perfect for home office or studio (the SF of the converted garage is NOT included in the living area total). One of Miami's best neighborhoods!