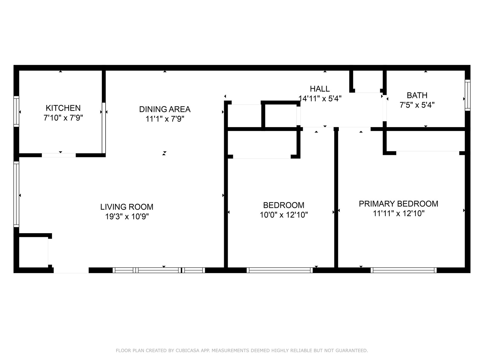
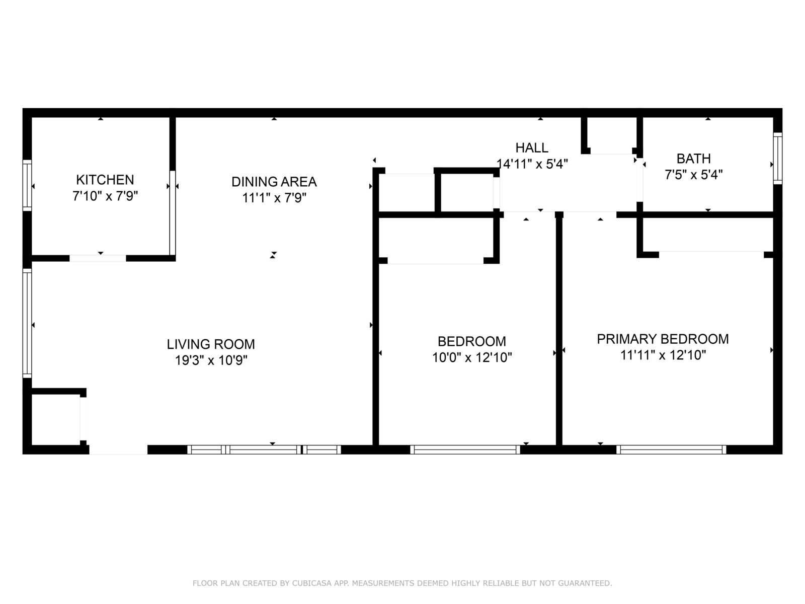
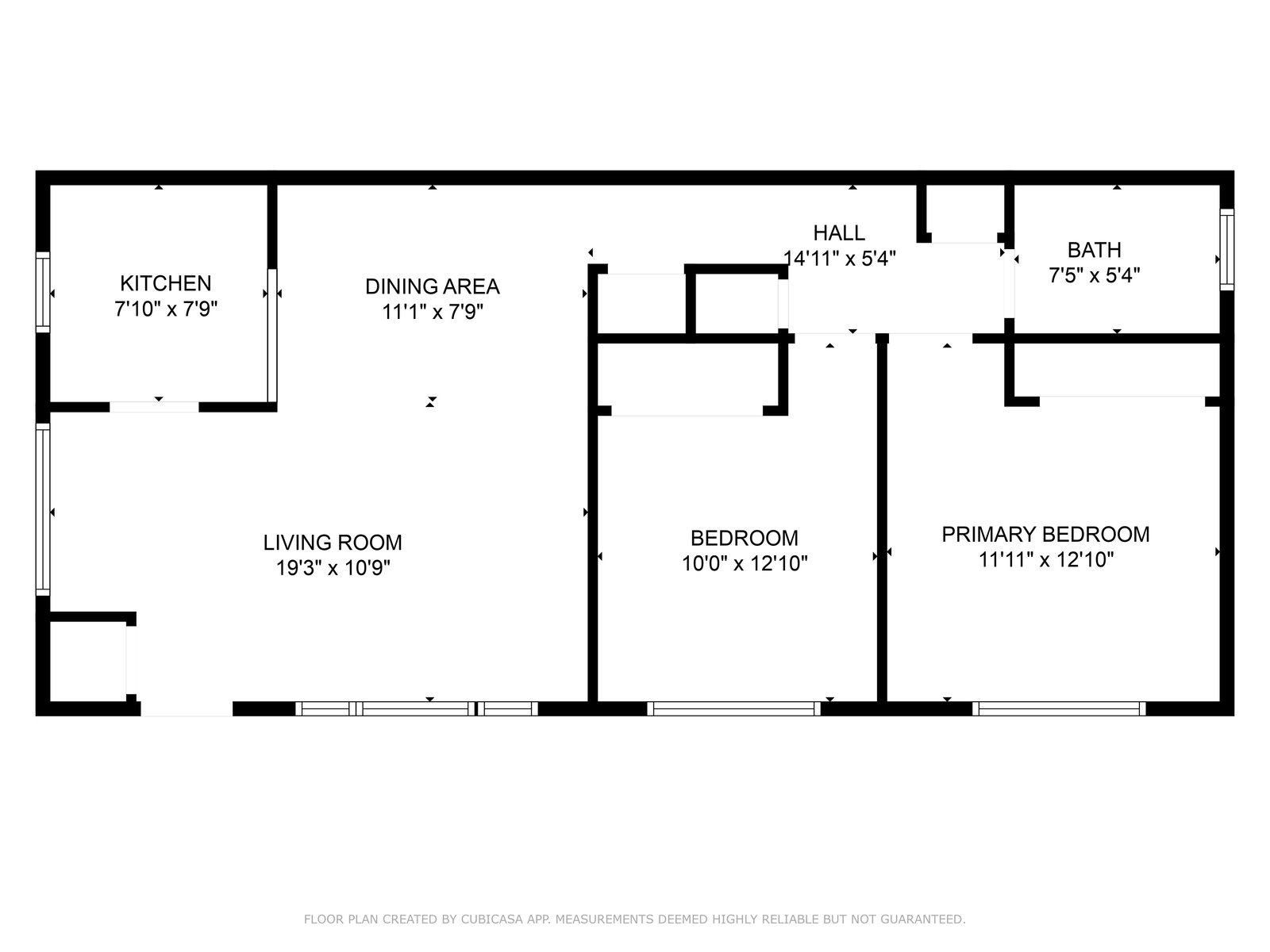
2beds
1bath
924sqft
2,278sf lot
Opportunity for a first-time home buyer or investor. This desirable #4 McCuen is in beautiful shape with updated, gourmet kitchen, bathroom, flooring and paint. Located close to the American River ...
Read More ›
