
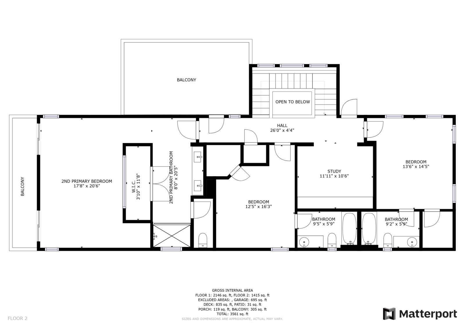
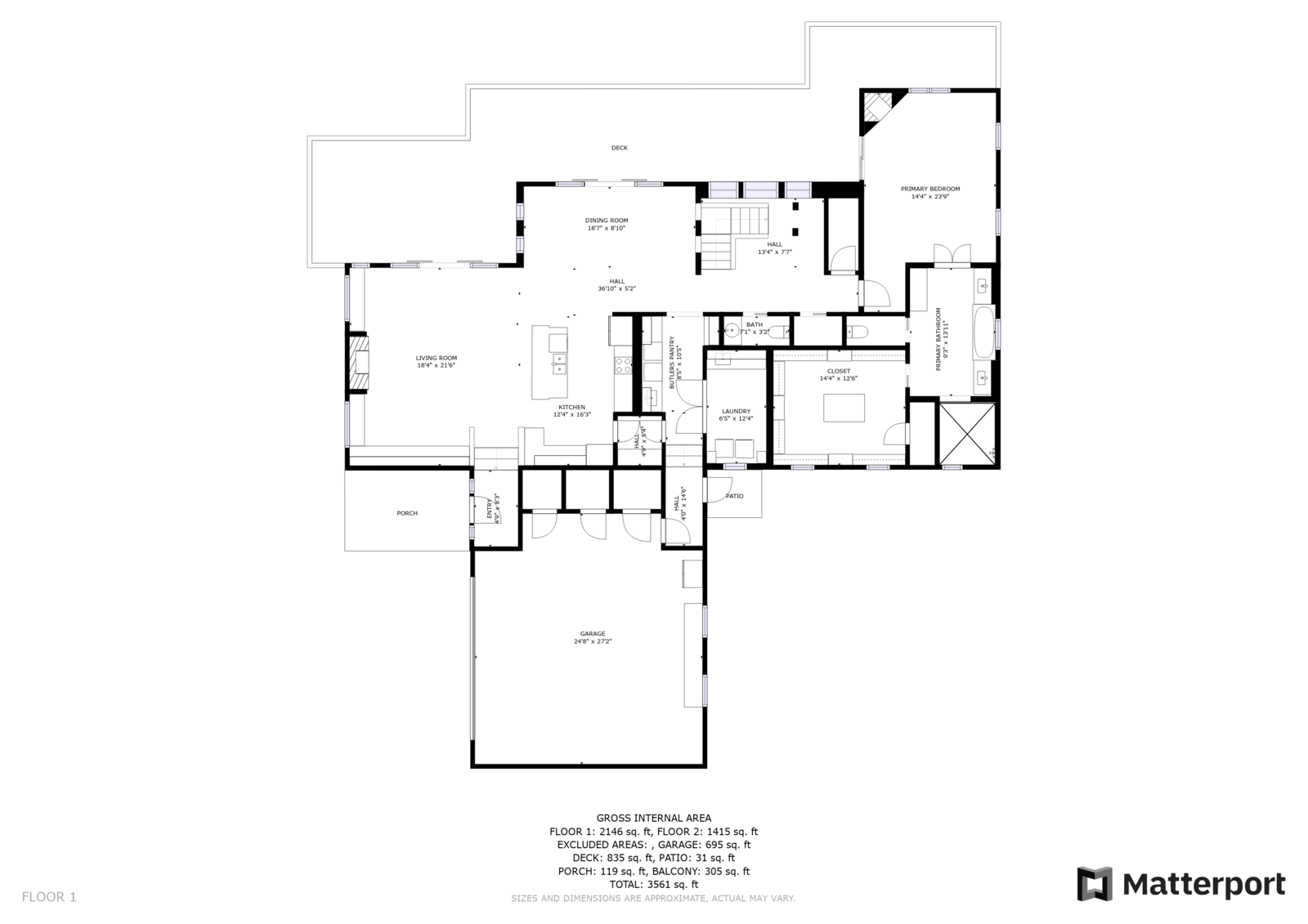
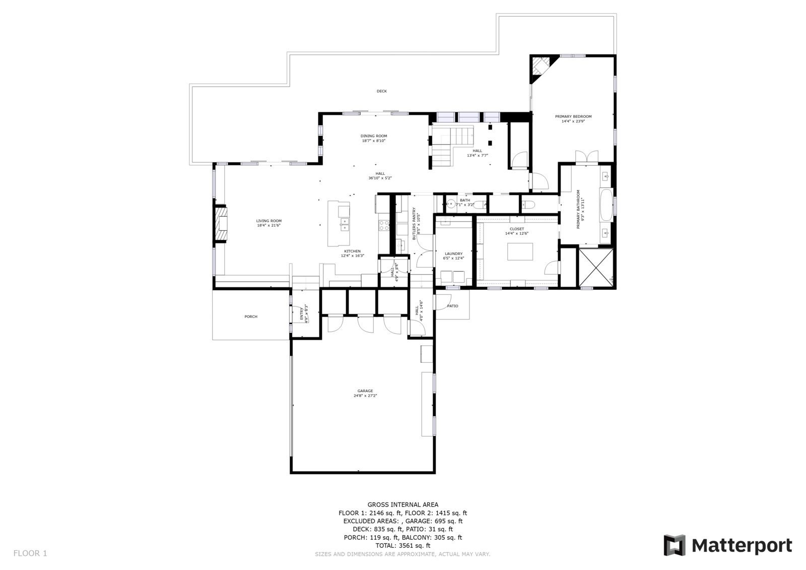
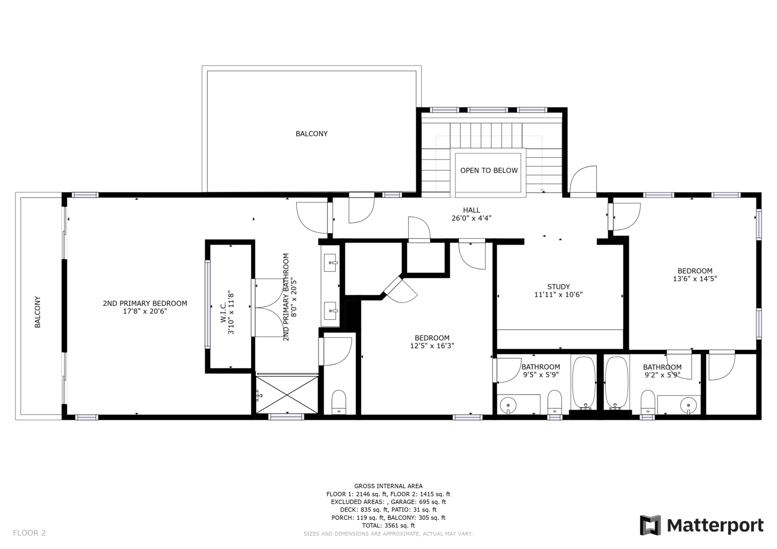
Exquisite finishes in this 4 bedroom, 4.5 bath contemporary home in the prestigious Canyons at Scenic Loop. Expansive unobstructed views from the over 1200 sf of wraparound terraces. Reach this hilltop home along the winding tiered dry-stack stone driveway and the views take over from there. This over 3800 square foot home offers 4 bedrooms complete with private bath, plus a study and an oversized 2 car garage. There are two primary suites, one up and one down. Both boast a zen spa environment with walk in showers, separate contemporary garden tubs and expansive custom closet space. The smart layout features terrazzo flooring throughout the first floor and terrazzo backlit staircase. High end custom finishes throughout including modern lighting, designer tile work, Thermador appliances, butlers pantry/servery w/bar sink & wine refrigerator, & custom cabinetry in all wet areas. The living area is anchored by the stylish floor to ceiling tiled fireplace w/end to end mounted TV. Additional amenities include water softener, state of the art irrigation system, several storage options, and very private back yard space to top it all off. Convenient location close to La Cantera, The Rim, medical options, and NISD.