Set on a hill overlooking Old Town Truckee with lovely mountain views, this historic residence, built circa 1880, is the last of the grand Truckee mansions on the east side of Trout Creek. Built by the Graham family, this once-glorious home is ready for a new owner with vision to continue restoring it to its former beauty.
With a Historical District Category B rating and a Mills Act designation, it offers unmatched potential and a rare opportunity to reimagine one of Truckee’s last historic properties.
Thoughtful renovations blend seamlessly with timeless charm, from the welcoming entry and inviting country kitchen to a parlor that evokes the spirit of a century past.
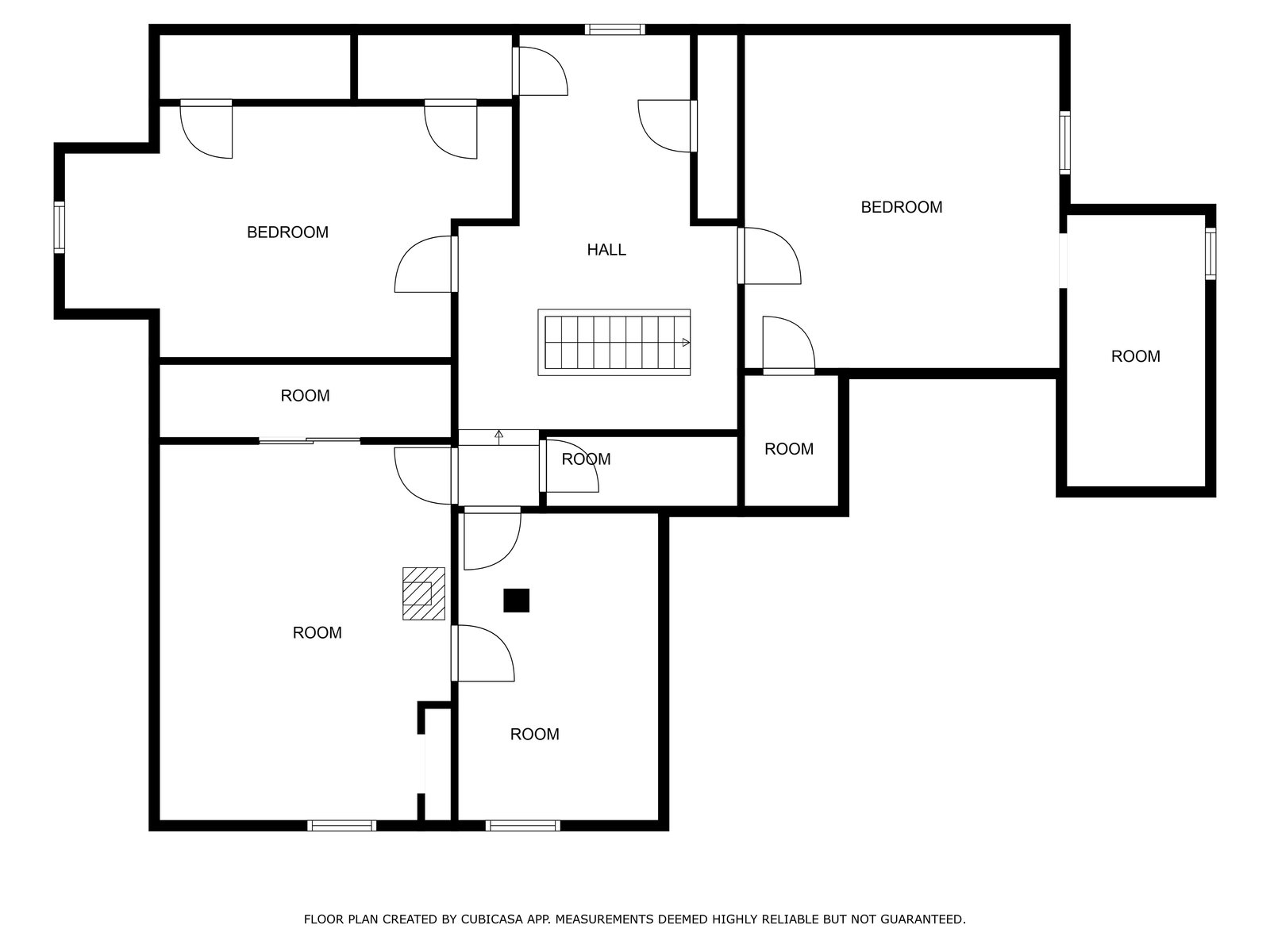
The main level has seen partial updates, including the breezeway, entry, laundry room, bedroom, full bath, and half bath. A spacious detached two-car garage with a finished workshop below with its own entrance have also been added, along with extensive foundation work to the home. Portions of the main level remain unfinished, while the upper level awaits full restoration, offering a blank canvas for future design.
Situated on an rare oversized .39-acre street-to-street parcel, offering town and mountain views, the property provides spacious side and rear yards for outdoor enjoyment, ample off-street parking, and a huge dirt-floor basement with exceptional storage and flexible potential to be built out.
Zoned Downtown High Density Residential, it allows for mostly residential ...
Property Details
Video
Photos
3D Tour
Map
Presented By

