
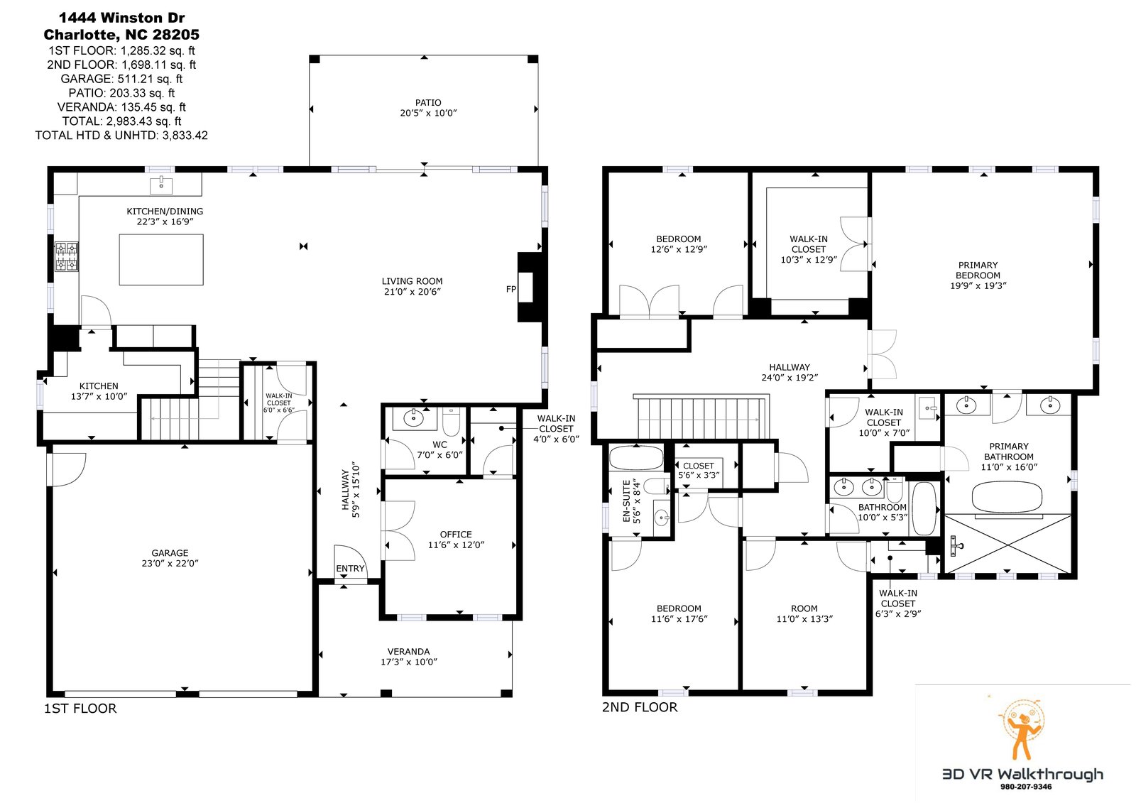
Enjoy the Charlotte lifestyle in this fabulous 4 bedroom, 4 bath home. Built in 2023 with a clean and well-planned 2983 sqft floorplan. This beautiful home will sell fast! Send an inquiry in the form below.
We'd love to show you more listings in your area! Fill out the form below to see everything we have to offer.