
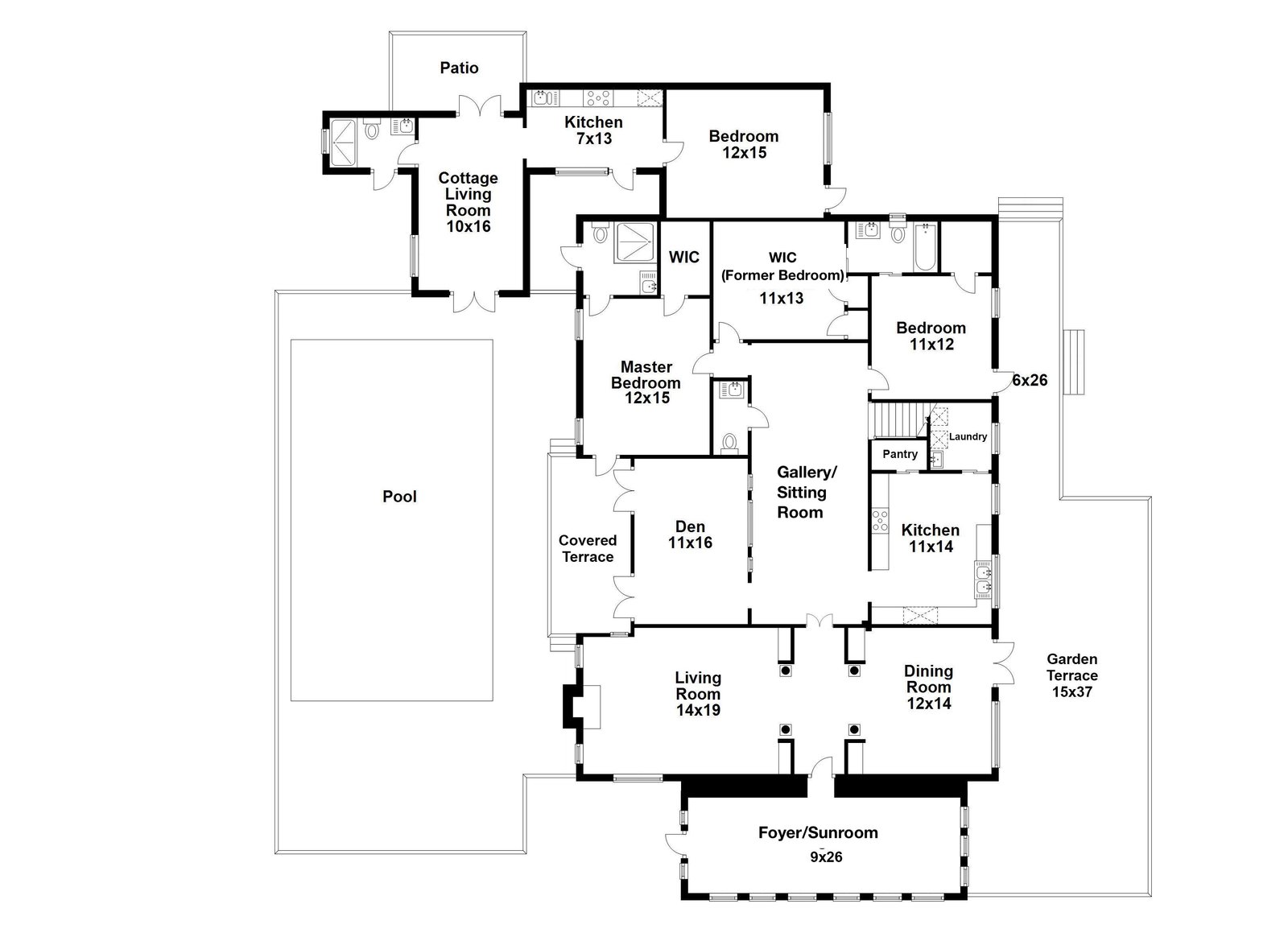
The Miami Stone House offers a rare opportunity to own a piece of Miami's history. Built in 1924, this Mediterranean Revival masterpiece, clad in oolitic limestone, stands as one of the city's few remaining homes from its formative era. As Miami celebrates its centennial in 2026, this property represents an irreplaceable piece of architectural heritage. The main residence showcases 1920s grandeur: soaring 10 to 16-foot ceilings, stained and leaded glass interior glazing, marble floors, and a working fireplace. Meticulously renovated in 2004, the home was restored from foundation to roof, while preserving its architectural soul. After two decades, this thoughtful renovation now invites a new steward to refresh and reimagine the spaces. The walled garden compound evokes old Miami romance—a raised terrace (700 SF) beneath a lush tropical canopy, pool and patio spaces, mature tropical fruit trees and the original stone entrance still standing sentinel. The 624-square-foot poolside cottage, redesigned in 2021, offers a full kitchen, bath, living area and spacious bedroom. Located in Shenandoah, one of Miami's most walkable neighborhoods, features tree-lined streets, parks, Michelin-recognized dining, and independent shops. Little Havana's vibrant scene is blocks away, while Brickell's financial district is just one mile away—ideal for urban professionals seeking historic character with modern convenience. Main House = 2 Bedroom, 2.5 Bath with a loft, living room, formal dining, den, sunroom and library.
~ ~ ~ ~ ~ ~
“Shenandoah is the heart of Miami: geographically central, and high and dry on a ridge. It is well connected to downtown…Shenandoah has had varied housing options: apartment buildings duplexes houses and garage apartments, all arranged together in harmonious streetscapes of bungalows and Mediterranean Revival architecture. The architecture in Shenandoah matters. It is climate adapted: large porches and windows allow for cross breezes and natural lighting. It is fanciful: there are arches elaborate chimneys, clay tile roofs and textured coral rock. For many residents, it reminds them of places where they grew up, from old Cuba to the Midwest. Shenandoah makes people happy.”
From: Historic Shenandoah: Rediscovering Miami Neighborhoods, Plusurbia Design
We'd love to talk with you more about this amazing home. Please fill out the form below and we'll be in touch soon to schedule a private tour.