About the Property
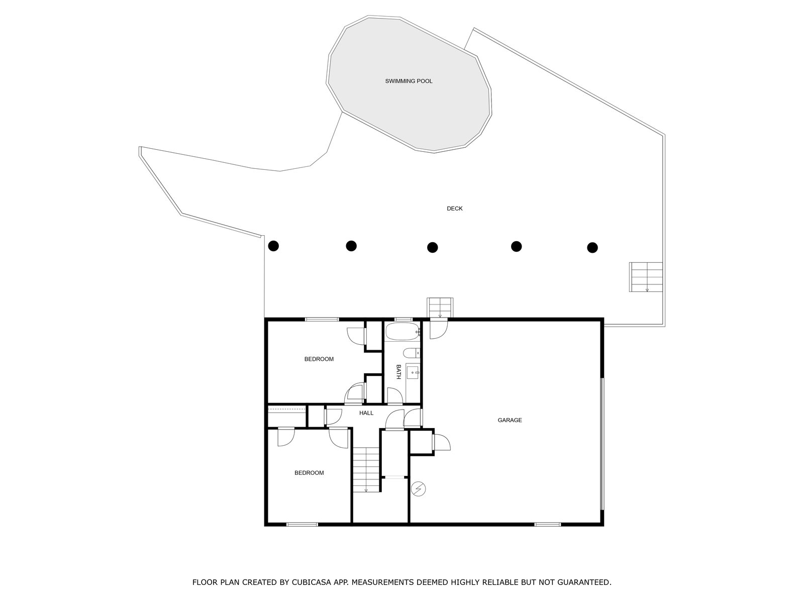
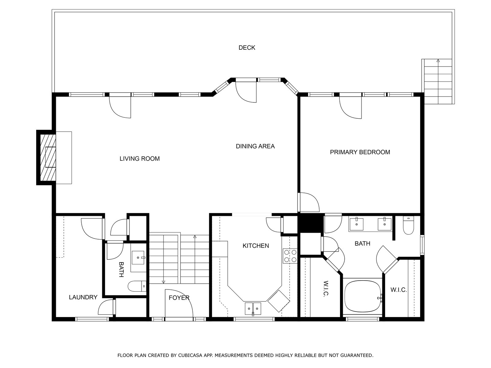
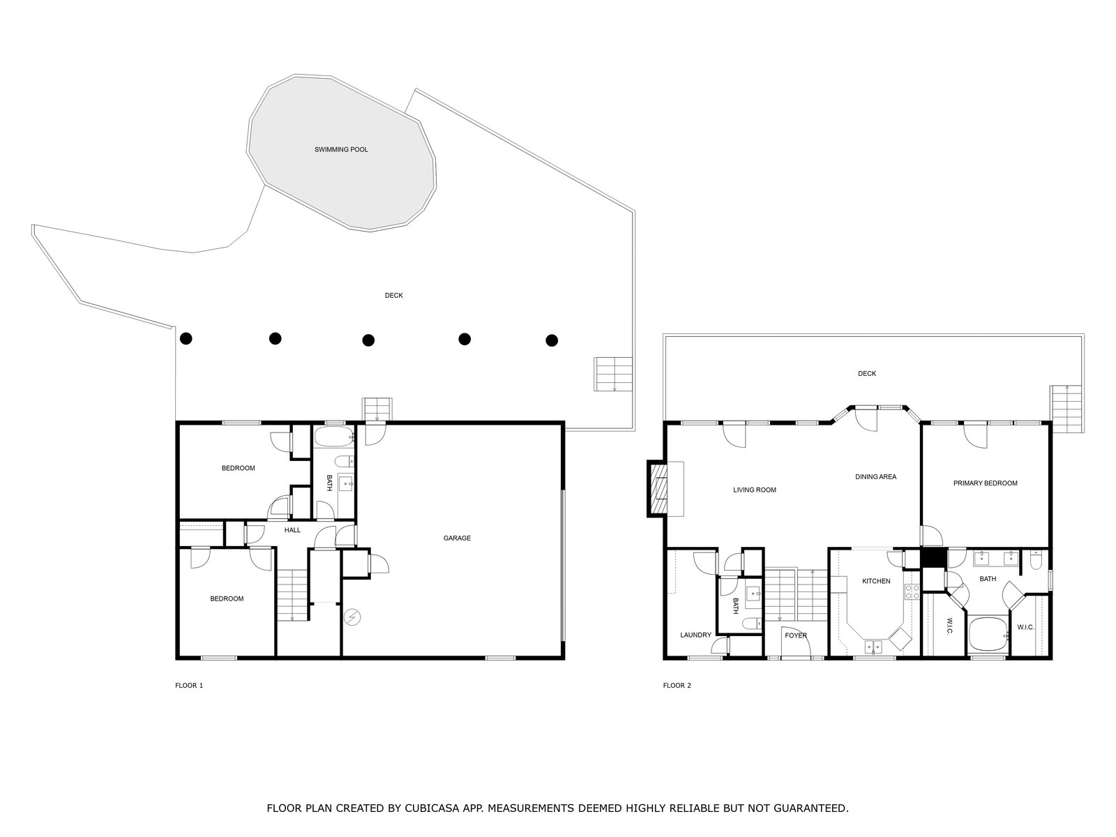
Beautifully updated 3 bedroom, 2.5 bathroom home on a large .336-acre lot with a private pool offering panoramic views of the Lago Vista Golf Course’s 15th fairway and green, Pace Bend Park, Lake Travis, and hill country sunsets! Set back from the street with a private extended driveway and a 2-car side-facing garage, this residence ensures both privacy and convenience. Step inside to an open-concept living space adorned with high vaulted ceilings and abundant natural light. The spacious living area features a modern ceiling fan and a floor-to-ceiling stone fireplace with a custom wood mantel, creating a warm and inviting atmosphere. Adjacent to the living area is a dining space highlighted by a stunning chandelier, perfect for entertaining guests. The chef’s kitchen boasts white cabinetry, quartz countertops, ample storage, and sleek stainless-steel appliances, making it a culinary haven just steps away from the dining area. Upstairs, the primary suite offers a serene retreat with a vaulted ceiling, two walk-in closets, and a private en-suite bath featuring a quartz-topped dual vanity and a luxurious jetted tub/shower combo. Both the living area and primary bedroom have direct access to the covered terrace, where you can unwind underneath the ceiling fans and take in incredible views of the Lago Vista Golf Course’s 15th fairway and green, Pace Bend Park, Lake Travis, and spectacular hill country sunsets. The expansive backyard is an outdoor oasis, complete with a terraced covered patio and composite decking that surrounds the private above-ground pool. The extended driveway provides ample parking space for RVs, boats, or jet skis, accommodating all your outdoor recreational needs. Other features include a recent roof, interior/exterior paint, lighting, appliances, fencing, drainage, water heater, and more. Situated on a large lot, this home offers unparalleled privacy and a prime location to enjoy stunning views and serene living. Schedule a showing today!