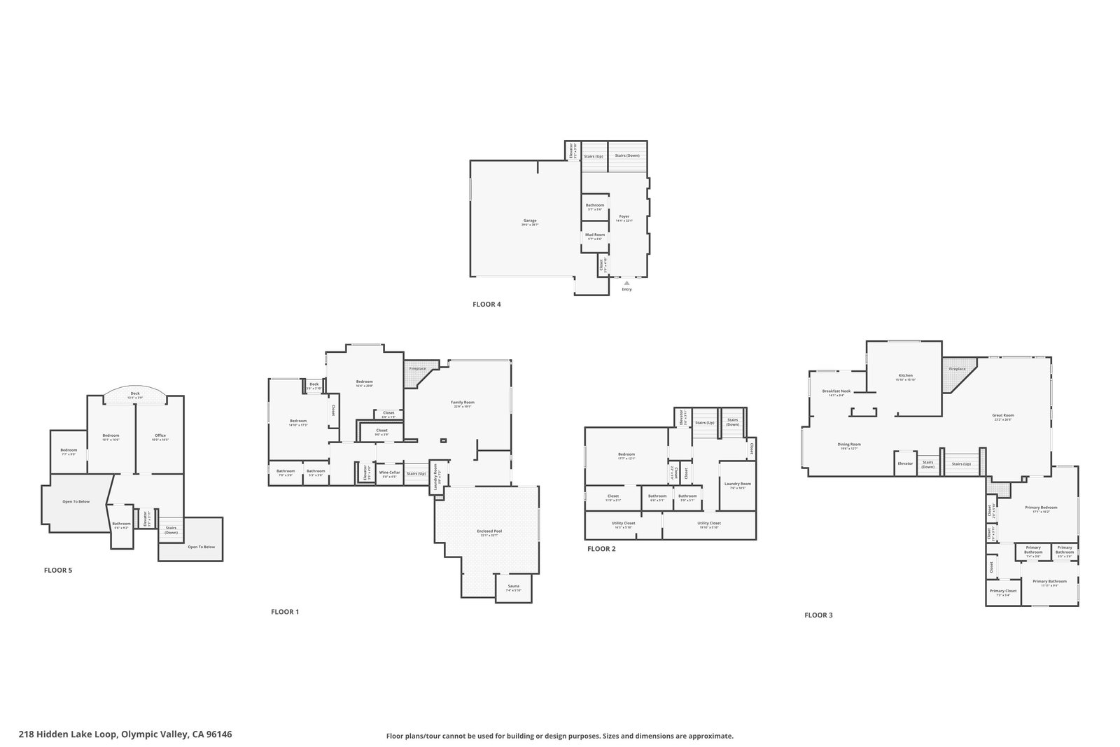
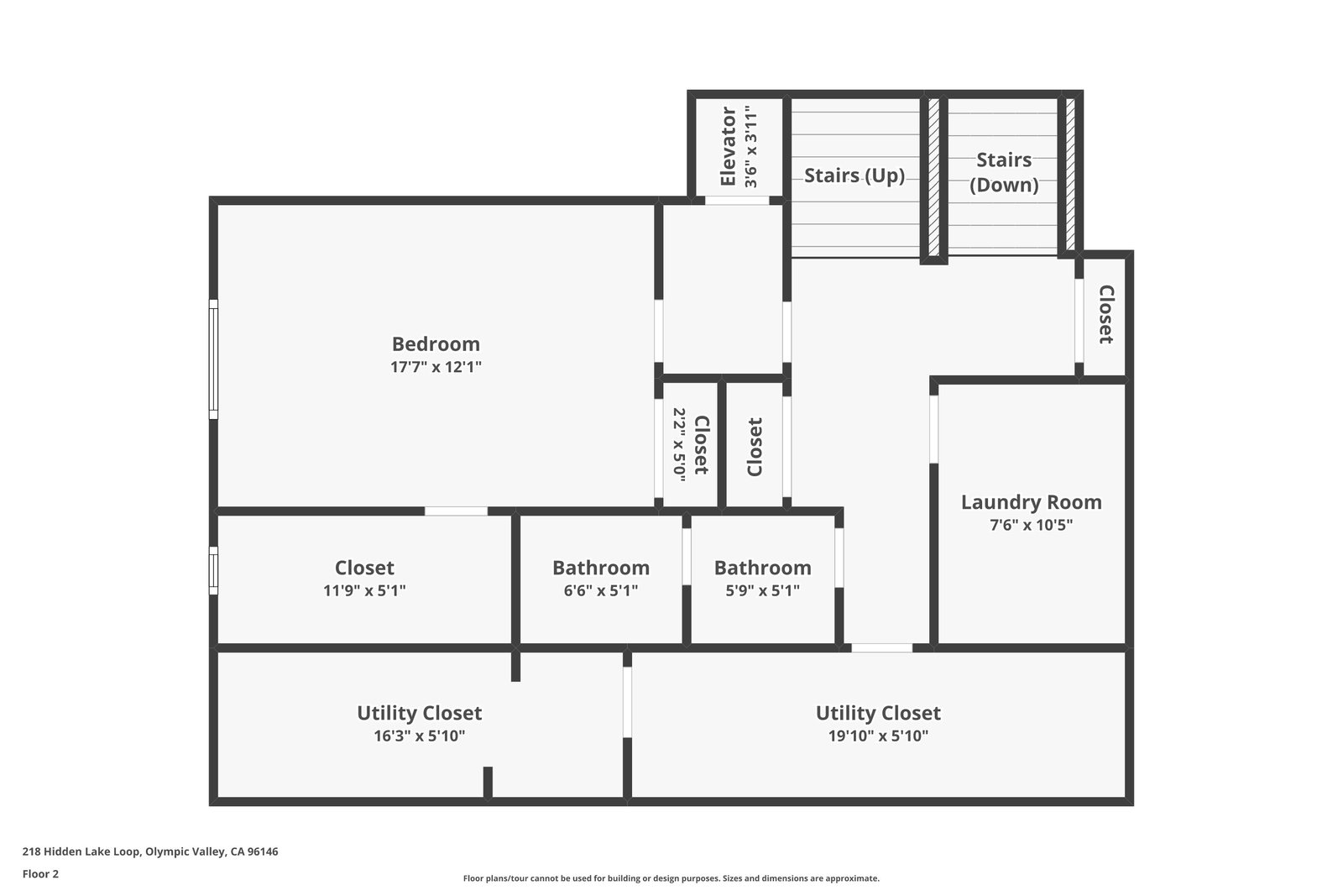
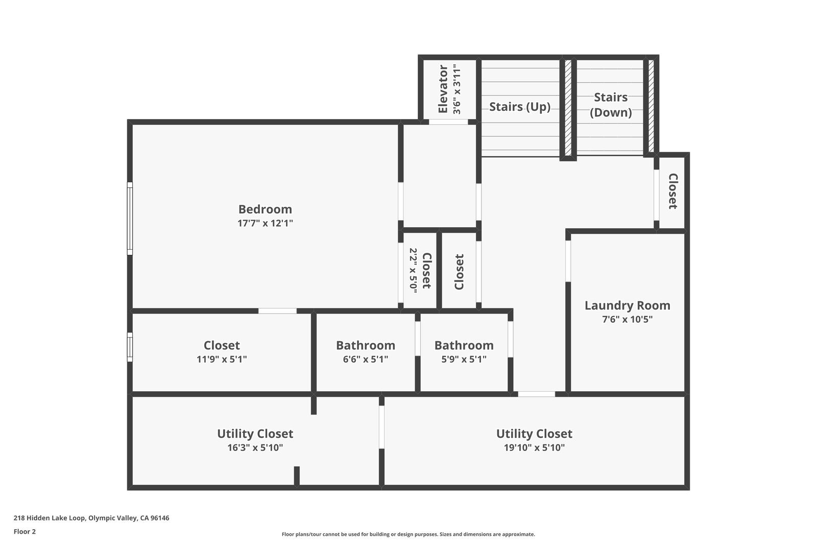
Property Details
Bedrooms5
Bathrooms4full 1half
Living Area5,676 sqft
Year Built1999
Video
Photos
Map
218 Hidden Lake Loop
Olympic Valley, CA 96146
Presented By

Chiara and Ron Gajar and Larry Lawrence
Title
REALTOR
Company
Lawrence Realty
Phone
(530) 412-2233
Email
chiara@lawrencerealty.com
License #
01476946
Get in Touch
218 Hidden Lake Loop
Olympic Valley, CA 96146
