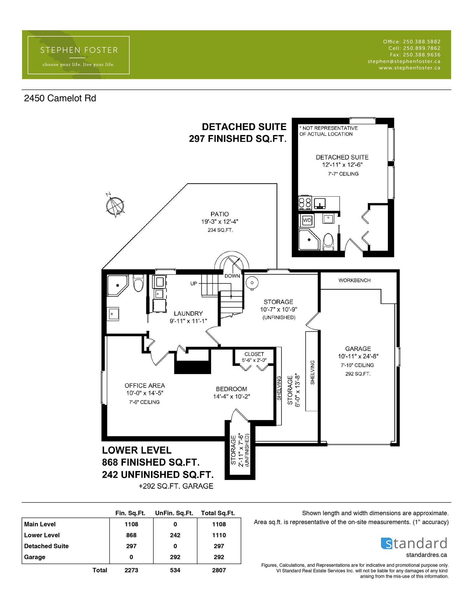
2450 Camelot Road
Virtual Tour
∎
Video
∎
Amenities
∎
- Open Floor Plan
- Quiet and Private
- Walk-In Closets
- Beach Access
- Great Schools
- Heated Floors
- Hardwood Floors
- Large Lot
- Shopping Nearby
- Stainless Steel Appliances
2450 Camelot Road
Victoria, BC V8N 1J4


