
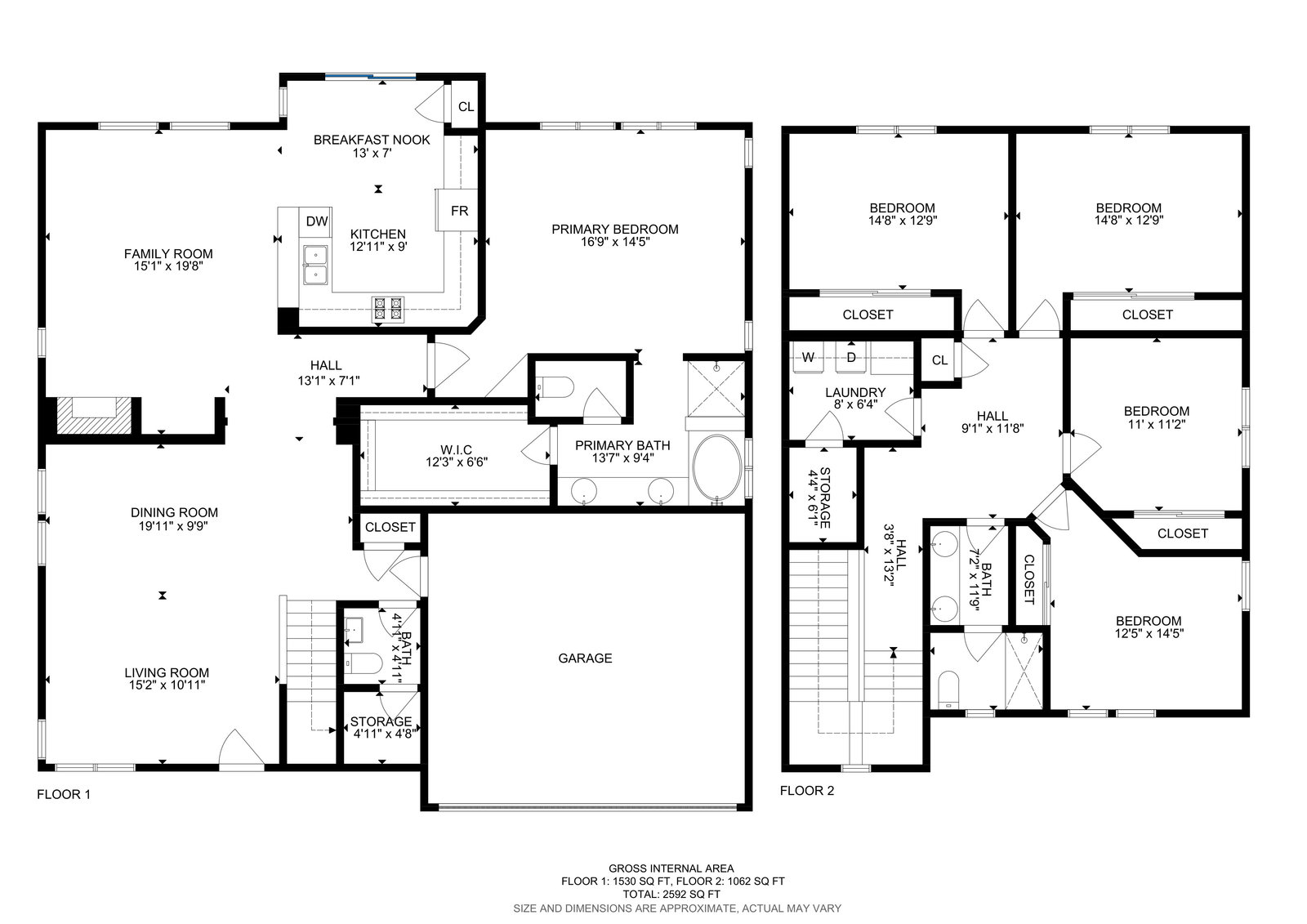
A serene Victoria neighborhood setting is the scene for this wonderfully spacious home. Set at the back of the cul-de-sac with plenty of guest parking is a covered entry with a strikingly tall door. Just inside, elegant flooring runs throughout where you’ll find the spacious living room with dining area, tall plantation shutter windows, and half bath with under-stair storage. Continue through the threshold with ornate wood feature to the family room with fireplace and more great natural light. The area is open to the kitchen with plenty of counterspace, bartop seating, pantry, dining area, granite countertops, and back door slider. The convenient 1st floor primary suite enjoys plenty of space, oversized windows, walk-in shower, tub, double-sink vanity, and walk-in closet. Upstairs holds four wonderful guest rooms with large, mirrored closets, a full bath with double-sink vanity and tiled shower, and the laundry room with incredible closet space. A private backyard enjoys newer fences, a side yard with raised garden bed, sitting areas, and gate access. It’s all moments from the incredible Helen Putnam Regional Park, neighborhood sports courts, and easy downtown access!