About the Property
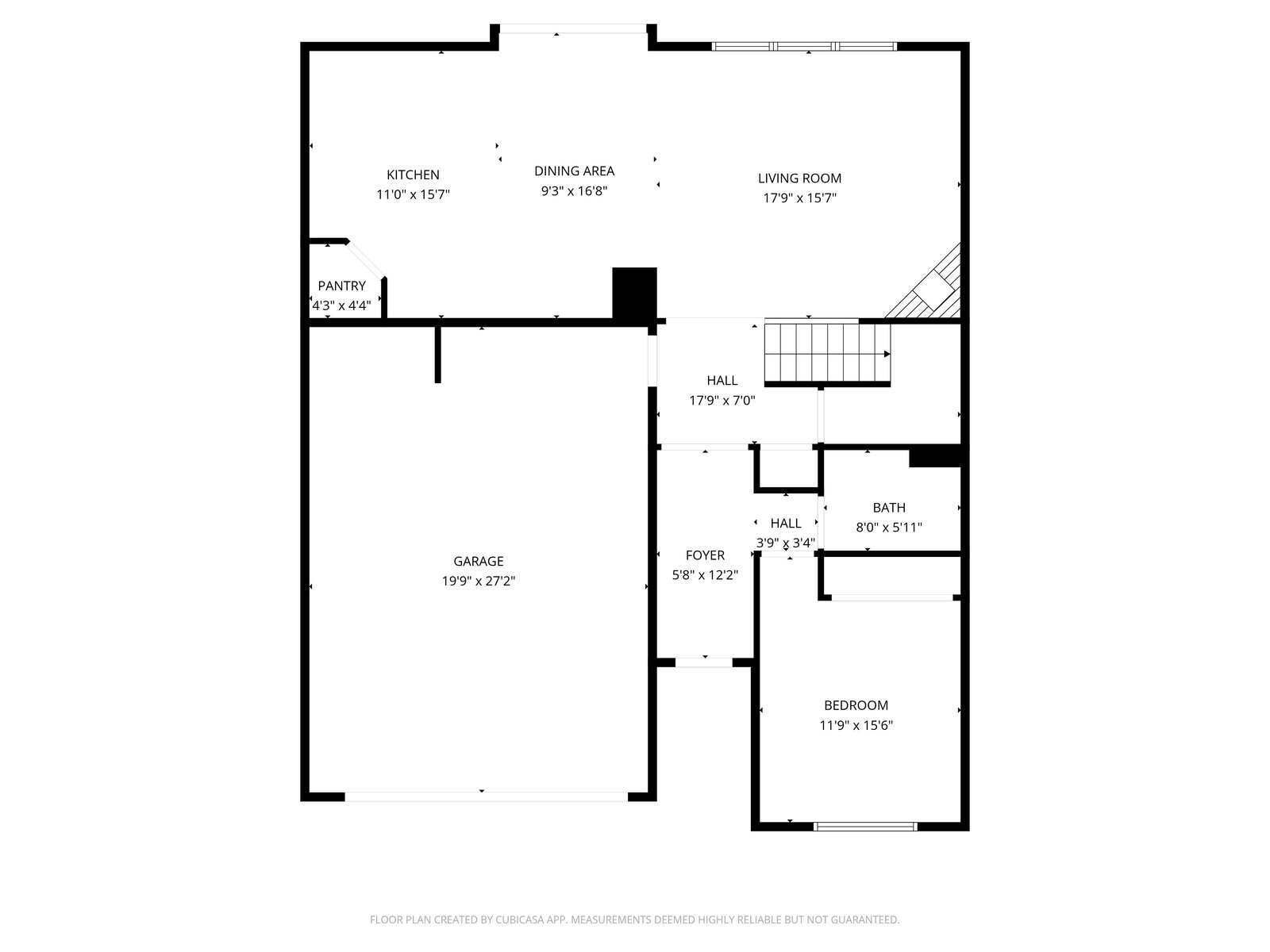
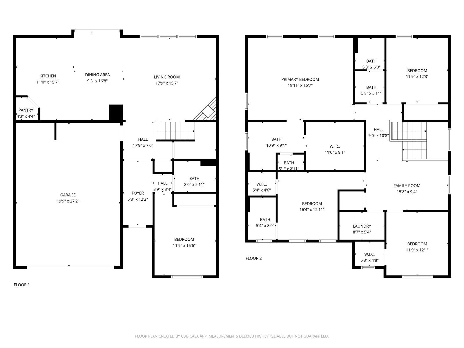
Enjoy the Aurora lifestyle in this fabulous 5 bedroom, 4 bath home. Built in 2020 with a clean and well-planned 2718 sqft floorplan. This beautiful home will sell fast! Send an inquiry in the form below.
5bedroomsBeds
4bathroomsBaths
2,718sqftHome Size
6,555 sqftsfLot Size
2020Year Built
