
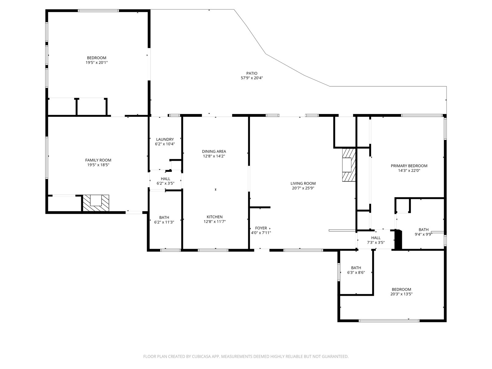
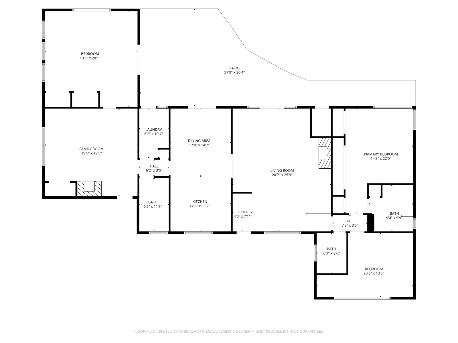
Amazing .64-acre lot with gorgeous rolling hill views. Close to nature; hawks, deer, and songbirds! Just minutes to the popular 7.65 mi Lafayette-Moraga Regional Trail. Terrific location near Lafayette border and close to St. Mary’s College.Three bedrooms, three full baths, potential fourth bedroom. Spacious 2575 +/- sq. ft. living area, flexible floor plan offering possibilities for many different lifestyles. Beautiful backyard has level patio, pavers, grassy area. Make the space your own, lots of room to add a sport court, vegetable garden, outdoor kitchen, pool (buyers to investigate). Perfect for indoor-outdoor entertaining! Many upgrades to original home, including remodeled and expanded kitchen/living room and third bedroom addition. Light and bright spaces, beautiful oak hardwood floors. Modern open layout of kitchen, living room and dining area. Updated kitchen includes custom cabinetry, gas cooktop, built-in appliances and warming drawer, granite counters. Family Room features gas fireplace, skylight, and adjacent bedroom. Potential to close off BR/Family Room ideal for multi-generational living. Remodeled hall bath. Central heat and AC, dual-pane windows. Award winning Moraga and Acalanes School Districts. Subsidized Moraga school bus.