About the Property
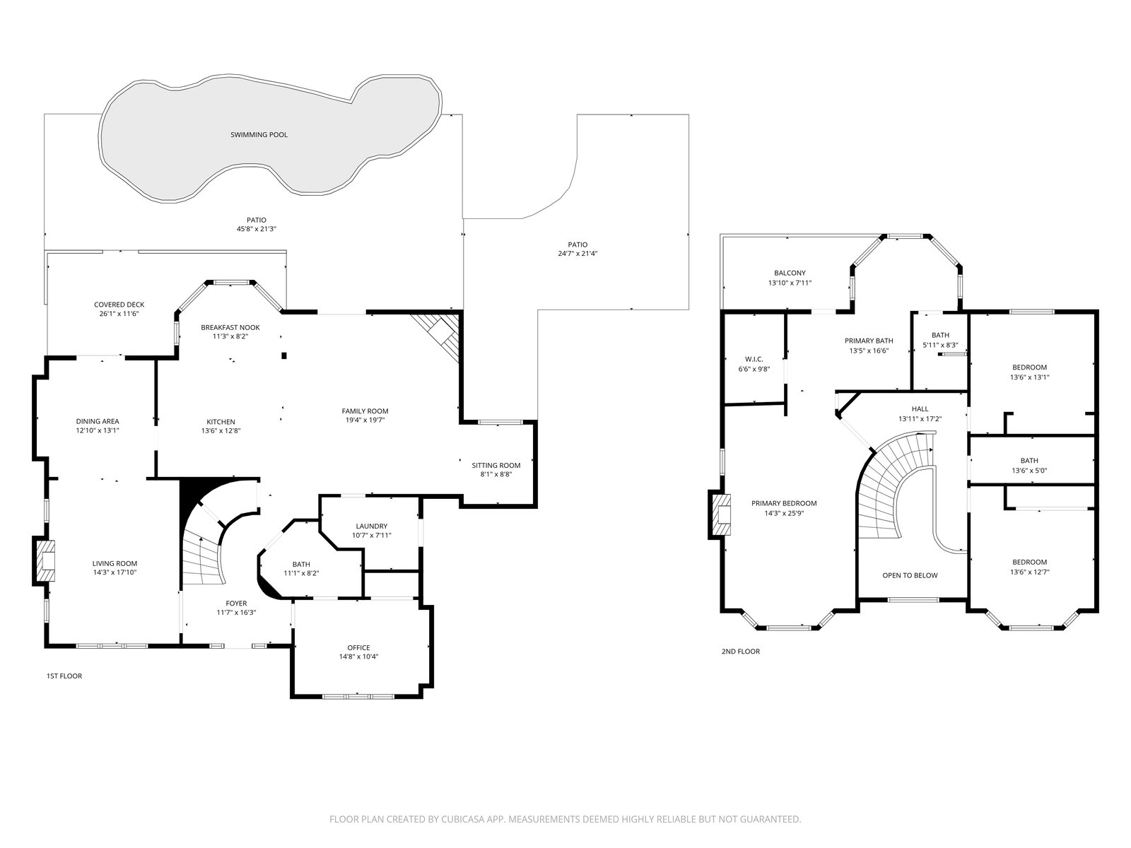
Tucked inside the exclusive gated community of Southshore at Riverlake, 891 Shore Breeze Drive isn’t just a home—it’s a lifestyle. Picture this: a gorgeous 32-acre private lake, tranquil green spaces, private marinas, and the comfort of roving security, all right outside your door. From the moment you pull up, this home makes an impression. The classic brick exterior sits on a spacious 9,148 sq. ft. lot, and stepping inside, you’re greeted by gleaming hardwood floors and a show stopping curved staircase. The entire space feels warm and welcoming, with rich wood accents and plenty of built-ins. The formal living and dining rooms are perfect for cozy evenings, thanks to a charming fireplace. And when it’s time to entertain? The dining area opens right up to the backyard, making indoor-outdoor hosting a breeze. The kitchen is ready for action, with tile countertops, a cheery breakfast nook, and a dining bar that flows into the family room. Speaking of the family room, it’s the ultimate hangout spot, featuring a floor-to-ceiling brick fireplace and easy access to the patio. The layout is as flexible as it is functional. Downstairs, you’ll find a bedroom (or home office), a full bathroom, and a laundry room. Head upstairs to the primary suite, where you’ll discover a double-door entrance, a cozy fireplace, and a private balcony. The en-suite bathroom has a soaking tub, separate shower, dual sinks, and a walk-in closet. Two additional bedrooms upstairs share a light-filled bathroom with a skylight. Out back, the fun really begins. The sparkling pool and spa, built-in BBQ, and multiple patios make this yard great for entertaining. Plus, the 4-car garage (tandem)—with extra cabinetry and drive-through access to the backyard—adds a ton of convenience.