Property Tour
$65.00 Sq. Ft. Net
2,781 sqftHome Size

2577 Yonge Street

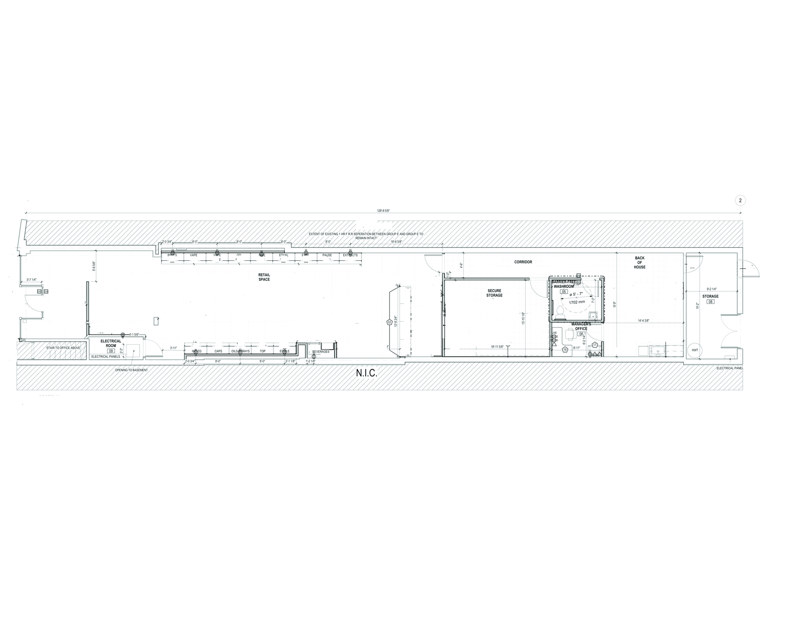
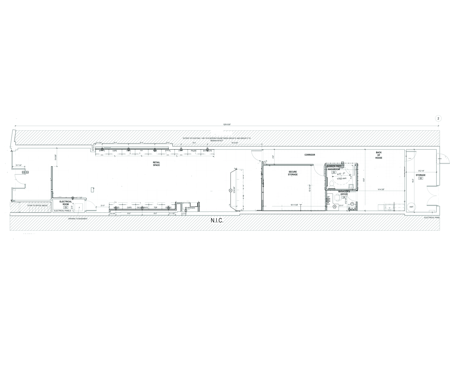
2,781 sf street-level space for lease with 22 feet of prime Yonge street frontage, just north of Yonge & Eglinton in midtown Toronto. Set within an upscale retail-residential corridor, it draws from a wealthy customer base and superb transit access via the nearby Eglinton TTC Station and the upcoming Crosstown LRT. neighbouring brands like Clinique du Mode, Club Monaco, and Sporting Life enhance the strong tenant mix. This is a compelling option in one of Toronto's most sought-after, fast-evolving districts-ideal for operators seeking high visibility and steady foot traffic. Monthly paid parking is available. The property also provides an additional basement/crawlspace for storage. Contact ...

Floor Plans

Presented By

agent headshot
Don Mulholland
Title
Realtor Vice-President - Commercial Division
Company
Bosley Real Estate Ltd., Brokerage
Phone
416-569-2785
Email
dmulholland@ccim.net
agent headshot
Stephanie White Willitts
Title
Realtor
Company
Bosley Real Estate Ltd., Brokerage
Phone
647-297-0697
Email
sww@ccim.net
2577 Yonge Street
Toronto, ON M4P 2J1

Get in touch

Send Inquiry
2577 Yonge Street
Toronto, ON M4P 2J1
Loading...