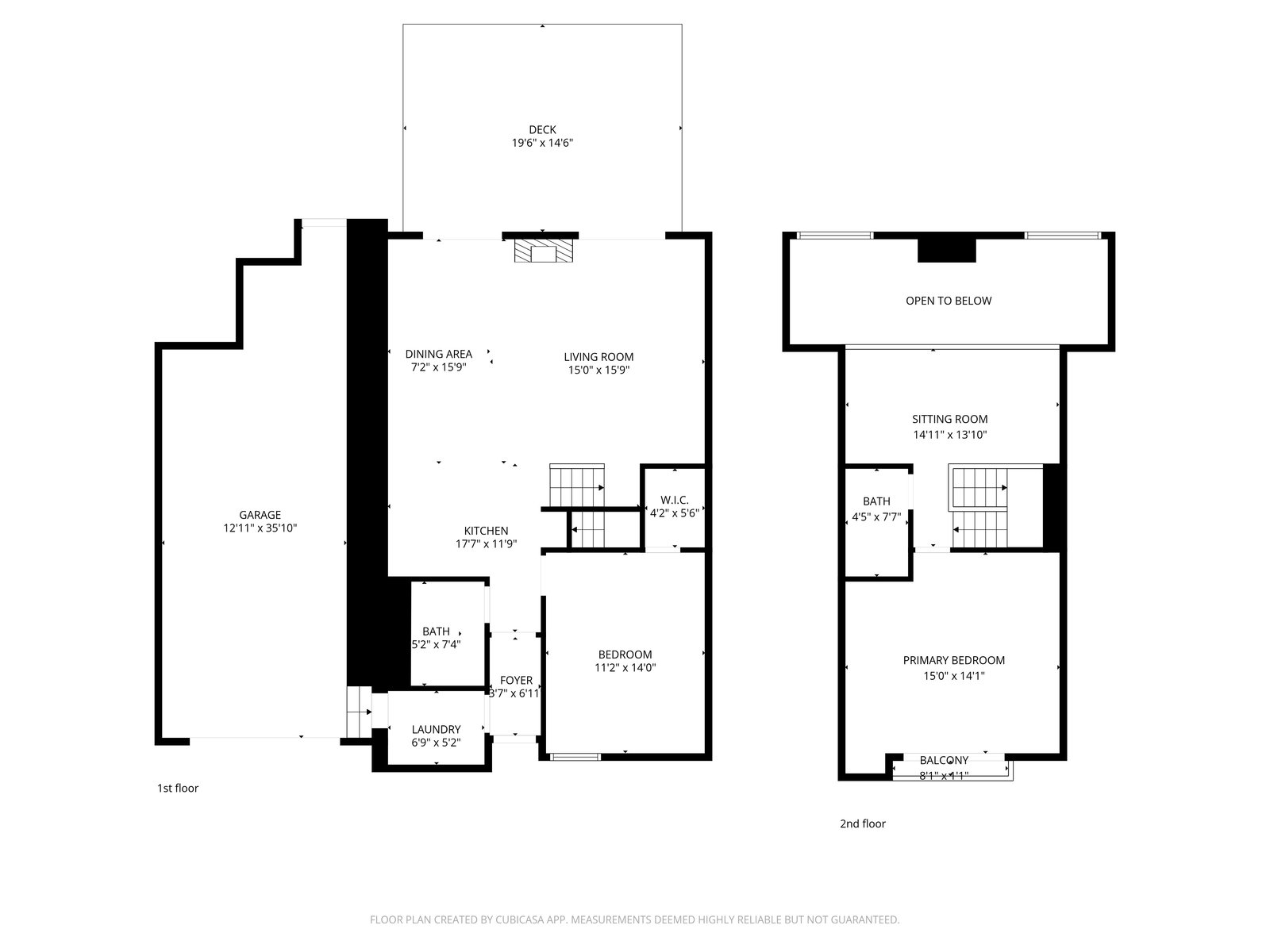
Charming mountain cabin set in a peaceful Tahoe Donner neighborhood on a level, sun-filled lot conveniently located near the downhill ski area and cross-country center. This beautifully updated gambrel-style home showcases thoughtful improvements including a newer 455 sq. ft. attached garage with abundant storage. Interior features include updated kitchen countertops and appliances, remodeled bathrooms, a gas fireplace and fresh interior paint, along with laminate flooring downstairs and new engineered hardwood upstairs.
The functional floor plan offers two bedrooms, two full bathrooms, a versatile loft, a dedicated laundry room and a practical airlock entry. Enjoy the rustic warmth of natural wood beams with solid wood shiplap. A wall of windows invites natural light and seamlessly connects the living space to the expansive deck, where serene forest views create the perfect mountain backdrop. Owner has expired plans for a junior ADU. An exceptional opportunity offering comfort, style and value.
Enjoy close proximity to the Tahoe Donner Downhill & Adventure Center, The Lodge Restaurant & Pub, Z’s Market, and the Trout Creek Rec Center with pools and fitness facilities. As part of the Tahoe Donner HOA, you’ll have access to incredible four-season amenities including pools, fitness, tennis, downhill and cross-country skiing, a private beach at Donner Lake, and miles of scenic hiking and biking trails. Move in and start living your Tahoe dream ...
Property Details
Features
- Community Clubhouse
- Community Pool
- Quiet and Private
- Stainless Steel Appliances
- Oversized Windows
- Huge Garage
- Gas Fireplace
- HOA with Amenities
